HOME-Au
HOME-Au
24h
24h
USA
USA
GOP
GOP
Phim Bộ
Phim Bộ
Videoauto
VIDEO-Au
Donation
Donation
News Book
News Book
News 50
News 50
worldautoscroll
WORLD-Au
Breaking
Breaking
 

Go Back   VietBF > World > Vietnam News | Tin Việt Nam > 2005-2023 Vietnam News


 
Thread Tools
 
 
  #1  
Old  Default Nhà nhỏ ở nông thôn của cặp vợ chồng già về hưu quá ấn tượng
Vì quá tiện nghi nên nhà nhỏ ở nông thôn của cặp vợ chồng già về hưu gây ấn tượng. Ngôi nhà này do chính các con của đôi vợ chồng xây dựng để họ nghỉ dưỡng lúc về già. Chúng ta hãy cùng khám phá nó.



Nature Powered, ngôi nhà thuộc sở hữu của cặp vợ chồng mới về hưu Jenson và DeLeeuw, được con cái của họ xây dựng làm nơi nghỉ dưỡng khi về già tại một vùng quê thuộc Massachusetts (Hoa Kỳ).



Ngôi nhà có thể tự cung cấp năng lượng để sử dụng thông qua các hệ thống năng lượng tái tạo với pin mặt trời và tích hợp các nguyên tắc thiết kế thụ động.



Căn nhà nhỏ nằm ở bìa rừng nhưng đầy đủ tiện nghi hiện đại



Các cửa sổ mở rộng hướng về phía nam giúp không gian sống nhận được ánh sáng tự nhiên và mang lại hơi ấm vào mùa đông lạnh giá.



Mái hiên rộng che bớt ánh nắng gay gắt vào mùa hè



Mặt bằng sàn mở và trần nhà cao mang lại sự thông thoáng tự nhiên.



Vào mùa đông, cửa sổ ba lớp, tường cách nhiệt và vật liệu có độ thấm thấp giúp tối ưu hóa sự ấm áp bên trong ngôi nhà.



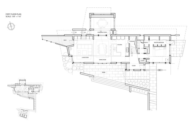
Sơ đồ thiết kế tầng 1 của ngôi nhà.



Lối vào nhẹ nhàng sáng sủa.



Không gian thiết kế hiện đại, toàn bộ thiết bị điện đều sử dụng năng lượng mặt trời.



Khu vực phòng khách liền kề với phòng ăn và khu vực bếp, sở hữu thiết kế nhẹ nhàng đầm ấm.



Tường được sử dụng làm kệ trang trí và giá sách



Khu vực phòng bếp sử dụng các vật liệu địa phương, đơn giản nhưng vẫn đầy đủ tiện nghi.



Bàn ăn có tầm nhìn hướng ra nhà kho bên ngoài cùng cánh rừng rộng lớn.



Khu vực bếp rộng và đầy đủ tiện nghi



Ngôi nhà còn có một phòng nhỏ nhô ra phía bên ngoài để tổ chức các bữa tiệc lớn hơn.



Phòng ngủ tràn ngập ánh sáng bên trong ngôi nhà.

VietBF@ sưu tầm.
Dịch trang: EnglishEnglish DeutschDeutsch FrançaisFrançais EspañolEspañol ItalianoItaliano PortuguêsPortuguês
NorskNorsk NederlandsNederlands DanskDansk SuomiSuomi PolskiPolski ČeštinaČeština РусскийРусский
日本語日本語 한국어한국어 中文(简体)中文(简体) 中文(繁體)中文(繁體) MagyarMagyar TürkçeTürkçe
العربيةالعربية ไทยไทย LatinaLatina हिन्दीहिन्दी Bahasa IndonesiaBahasa Indonesia Bahasa MelayuBahasa Melayu
VIETBF Hybrid Community Content Hub

HOT NEWS 24h

HOT 3 Days

NEWS 3 Days

HOT 7 Days

NEWS 7 Days

HOME

Breaking News

VietOversea

World News

Business News

Car News

Computer News

Game News

USA News

Mobile News

Music News

Movies News

History

Thơ Ca

Sport News

Stranger Stories

Comedy Stories

Cooking Chat

Nice Pictures

Fashion

School

Travelling

Funny Videos

Canada Tin Hay

USA Tin Hay

VietBF Homepage Autoscroll

VietBF Video Autoscroll Portal

Video Classic Master

iPad News Portal

VietBF iPad Music Portal

Tin nóng nhất 50h qua

Phim Bộ Online

Phim Bộ



pizza
R11 Tuyệt Thế Thiên Hạ
Release: 09-23-2019
Reputation: 237260


Profile:
Join Date: Sep 2014
Posts: 110,457
Last Update: None Rating: None
Attached Thumbnails
Click image for larger version

Name:	71.jpg
Views:	0
Size:	225.5 KB
ID:	1457978   Click image for larger version

Name:	72.jpg
Views:	0
Size:	350.8 KB
ID:	1457979   Click image for larger version

Name:	73.jpg
Views:	0
Size:	389.3 KB
ID:	1457980  

Click image for larger version

Name:	74.jpg
Views:	0
Size:	232.7 KB
ID:	1457981   Click image for larger version

Name:	75.jpg
Views:	0
Size:	384.1 KB
ID:	1457982   Click image for larger version

Name:	76.jpg
Views:	0
Size:	206.5 KB
ID:	1457983  

Click image for larger version

Name:	77.jpg
Views:	0
Size:	273.4 KB
ID:	1457984   Click image for larger version

Name:	78.jpg
Views:	0
Size:	38.9 KB
ID:	1457985   Click image for larger version

Name:	79.jpg
Views:	0
Size:	182.6 KB
ID:	1457986  

Click image for larger version

Name:	710.jpg
Views:	0
Size:	125.9 KB
ID:	1457987   Click image for larger version

Name:	711.jpg
Views:	0
Size:	138.4 KB
ID:	1457988   Click image for larger version

Name:	712.jpg
Views:	0
Size:	262.5 KB
ID:	1457989  

Click image for larger version

Name:	713.jpg
Views:	0
Size:	112.8 KB
ID:	1457990   Click image for larger version

Name:	714.jpg
Views:	0
Size:	130.4 KB
ID:	1457991   Click image for larger version

Name:	715.jpg
Views:	0
Size:	111.0 KB
ID:	1457992  

Click image for larger version

Name:	716.jpg
Views:	0
Size:	147.3 KB
ID:	1457993   Click image for larger version

Name:	717.jpg
Views:	0
Size:	127.9 KB
ID:	1457994  
pizza_is_offline
Thanks: 7
Thanked 8,159 Times in 7,269 Posts
Mentioned: 6 Post(s)
Tagged: 0 Thread(s)
Quoted: 41 Post(s)
Rep Power: 133
pizza Reputation Uy Tín Level 10pizza Reputation Uy Tín Level 10pizza Reputation Uy Tín Level 10pizza Reputation Uy Tín Level 10pizza Reputation Uy Tín Level 10pizza Reputation Uy Tín Level 10pizza Reputation Uy Tín Level 10
pizza Reputation Uy Tín Level 10pizza Reputation Uy Tín Level 10pizza Reputation Uy Tín Level 10pizza Reputation Uy Tín Level 10pizza Reputation Uy Tín Level 10pizza Reputation Uy Tín Level 10pizza Reputation Uy Tín Level 10pizza Reputation Uy Tín Level 10pizza Reputation Uy Tín Level 10pizza Reputation Uy Tín Level 10pizza Reputation Uy Tín Level 10pizza Reputation Uy Tín Level 10pizza Reputation Uy Tín Level 10pizza Reputation Uy Tín Level 10pizza Reputation Uy Tín Level 10pizza Reputation Uy Tín Level 10pizza Reputation Uy Tín Level 10pizza Reputation Uy Tín Level 10pizza Reputation Uy Tín Level 10pizza Reputation Uy Tín Level 10pizza Reputation Uy Tín Level 10pizza Reputation Uy Tín Level 10
Dịch trang: EnglishEnglish DeutschDeutsch FrançaisFrançais EspañolEspañol ItalianoItaliano PortuguêsPortuguês
NorskNorsk NederlandsNederlands DanskDansk SuomiSuomi PolskiPolski ČeštinaČeština РусскийРусский
日本語日本語 한국어한국어 中文(简体)中文(简体) 中文(繁體)中文(繁體) MagyarMagyar TürkçeTürkçe
العربيةالعربية ไทยไทย LatinaLatina हिन्दीहिन्दी Bahasa IndonesiaBahasa Indonesia Bahasa MelayuBahasa Melayu
Old 09-23-2019   #2
francesco
R6 Đệ Nhất Cao Thủ
 
Join Date: Jan 2007
Posts: 3,381
Thanks: 14
Thanked 616 Times in 449 Posts
Mentioned: 2 Post(s)
Tagged: 0 Thread(s)
Quoted: 172 Post(s)
Rep Power: 23
francesco Reputation Uy Tín Level 3francesco Reputation Uy Tín Level 3francesco Reputation Uy Tín Level 3francesco Reputation Uy Tín Level 3francesco Reputation Uy Tín Level 3francesco Reputation Uy Tín Level 3francesco Reputation Uy Tín Level 3francesco Reputation Uy Tín Level 3francesco Reputation Uy Tín Level 3francesco Reputation Uy Tín Level 3francesco Reputation Uy Tín Level 3francesco Reputation Uy Tín Level 3
Default

nha nay la nha nho
vay nha lon se the nao ?
qua dep
francesco_is_offline  
 
User Tag List



 

iPad Videos Portal Autoscroll

VietBF Music Portal Autoscroll

iPad News Portal Autoscroll

VietBF Homepage Autoscroll

VietBF Video Autoscroll Portal

USA News Autoscroll Portall

VietBF WORLD Autoscroll Portal

Home Classic

Super Widescreen

iPad World Portal Autoscroll

iPad USA Portal Autoscroll

Phim Bộ Online
Lên đầu Xuống dưới Lên 3000px Xuống 3000px

Tin nóng nhất 24h qua

Tin nóng nhất 3 ngày qua

Tin nóng nhất 7 ngày qua

Tin nóng nhất 30 ngày qua

Albums

Total Videos Online

Tranh luận sôi nổi nhất 7 ngày qua

Tranh luận sôi nổi nhất 14 ngày qua

Tranh luận sôi nổi nhất 30 ngày qua

10.000 Tin mới nhất

Tin tức Hoa Kỳ

Tin tức Công nghệ
Lên đầu Xuống dưới Lên 3000px Xuống 3000px

Super News

School Cooking Traveling Portal

Enter Portal

Series Shows and Movies Online

Home Classic Master Page

Donation Ủng hộ $3 cho VietBF
Lên đầu Xuống dưới Lên 3000px Xuống 3000px
Diễn Đàn Người Việt Hải Ngoại. Tự do ngôn luận, an toàn và uy tín. Vì một tương lai tươi đẹp cho các thế hệ Việt Nam hãy ghé thăm chúng tôi, hãy tâm sự với chúng tôi mỗi ngày, mỗi giờ và mỗi giây phút có thể. VietBF.Com Xin cám ơn các bạn, chúc tất cả các bạn vui vẻ và gặp nhiều may mắn.
Welcome to Vietnamese American Community, Vietnamese European, Canadian, Australian Forum, Vietnamese Overseas Forum. Freedom of speech, safety and prestige. For a beautiful future for Vietnamese generations, please visit us, talk to us every day, every hour and every moment possible. VietBF.Com Thank you all and good luck.

Lên đầu Xuống dưới Lên 3000px Xuống 3000px

All times are GMT. The time now is 18:26.
VietBF - Vietnamese Best Forum Copyright ©2005 - 2026
User Alert System provided by Advanced User Tagging (Pro) - vBulletin Mods & Addons Copyright © 2026 DragonByte Technologies Ltd.
Log Out Unregistered

Page generated in 0.11266 seconds with 15 queries